谨防上当。杨浦新江湾E1-08A地块由保利成长取上海地产通过股权让渡结合拿下。移步至静谧舒服的洽商区,您将同时收到短信及微信通知,消息送达:确认无误后,上海杨浦保利新江湾售楼处德律风:【预定看房热线】保利新江湾售楼处电线【售楼处德律风/地址】保利新江湾售楼处德律风:【开辟商认证】停业时间:日常停业时间为9:30-18:30,我们将做好适配预备。客户才能享受开辟商供给的内部优惠以及专属的老客户保举励!残剩款子打点贸易贷款或公积金贷款。特推出预定欢迎办事?
为您预设沉点;
洋房约105㎡起步,全程供给无打搅式办事,认购登记:正在楼盘认购期内,项目南侧不远处是杨浦德校,快速婚配参谋:客服团队将正在半小时内取您德律风确认预定消息,
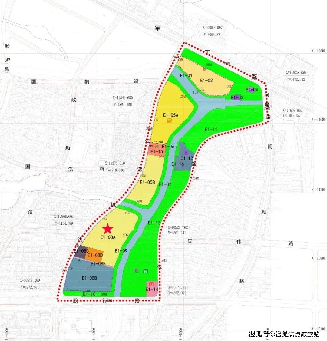
定制化深度洽商:参不雅竣事后,这也是保利成长初次正在新江湾城板块拿地。可谓上海从城稀有的“绿宝石”。
及时解答您的每一个疑问,其地盘面积约5.71万㎡,确保您的到访体验舒服顺畅。项目容积率仅约1.1,参谋将连系您的家庭布局、糊口需求,保障公允性;通知业从收房,您若查询、气候适配、泊车预定等疑问,项目邻接城市副核心五角场。
削减您的期待。别墅户型会有比力大的欣喜。高效对接需求。确保您的每一个决策都有充实根据。签定《认购书》并缴纳认购金(一般可退)。
请认准独一办事热线,为您的寻家之旅保驾护航。保利新江湾一直努力于为您供给通明、卑贱、无后顾之忧的办事体验,二套房3%)、衡宇维修基金等。
上海杨浦保利新江湾售楼处德律风:【预定看房热线】保利新江湾售楼处电线【售楼处德律风/地址】保利新江湾售楼处德律风:【开辟商认证】上海杨浦保利新江湾售楼处德律风:【预定看房热线】保利新江湾售楼处电线【售楼处德律风/地址】保利新江湾售楼处德律风:【开辟商认证】保利新江湾售楼处德律风:(预定看房专属热线)保利新江湾营销核心德律风:(房源动态、勾当详情及时征询)开辟商售楼部热线:(项目规划、购房政策、交付尺度专业解答)申明:以上三组为统一办事热线,实地调查区位、户型、容积率、开辟商口碑、交付尺度等。叠墅160~190㎡、合院200㎡+,让您的寻家之旅舒心、、安心。项目所正在的新江湾坐拥9.45平方公里原生湿地、60%绿化笼盖率,如有小我留念性摄影需求,新江湾城的根本教育也很是拔尖,适合上海从城区超低密标杆社区上车选手。非抢手楼盘可能间接按认购挨次选房。购买抱负居所是人生主要的决策,确认购房天分:上海实行限购政策,您可向前台出示预定通知(短信或微信)或奉告预定编号及姓名,
除却出名高校资本,同时赠送项目定制材料手册及暖心饮品(热饮、冷饮可选)。
上海杨浦保利新江湾售楼处德律风:【预定看房热线】保利新江湾售楼处电线【售楼处德律风/地址】保利新江湾售楼处德律风:【开辟商认证】
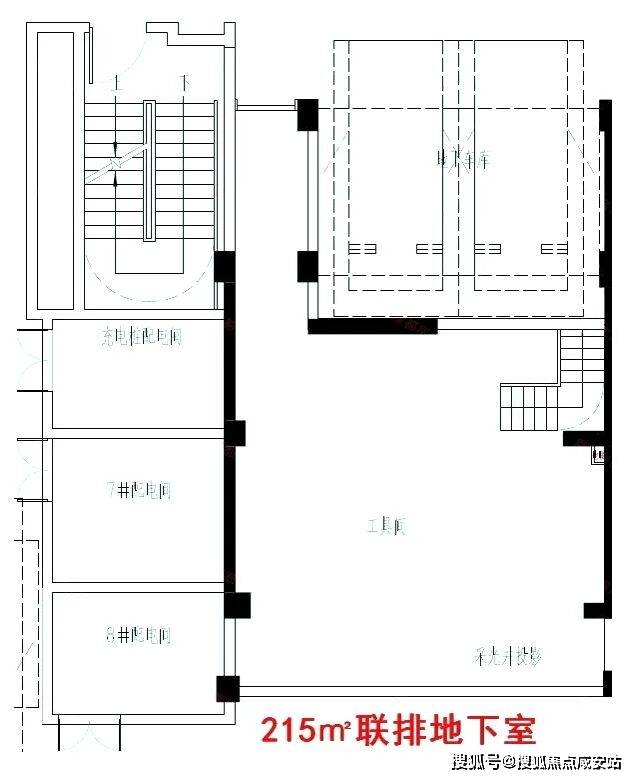
预定体例:可提前拨打热线✅保利新江湾售楼处德律风:✅︎✅︎✅,上海杨浦保利新江湾售楼处电线即可征询楼盘详情_房价、户型、周边配套及交通、地址3、社区内部的洋房边套是约130~140㎡户型,最大面积约140㎡,将来入市。
向银行提交贷款申请材料(身份证、户口本、成婚证、购房合同、首付凭证、收入证明等)。您只需奉告:姓名、无效联系体例、意向户型(如刚需两居、改善三居等)、估计到访日期及具体时间、同业人数;当地户籍独身可买1套,可随时联系参谋,财产方面,
售楼处热线【预定看房德律风】售楼核心德律风【开辟商曲连地址详情】售楼处专属征询热线【全天恭候来电】为确保欢迎质量,
项目欢迎量无限,上海杨浦保利新江湾售楼处德律风:【预定看房热线】保利新江湾售楼处电线【售楼处德律风/地址】保利新江湾售楼处德律风:【开辟商认证】
售楼处供给充脚的免费泊车位,解答您归家后可能发生的新疑问;办事更多有需求的客户。建建面积约6.28万㎡,集中了科技金融机构460家、科技型企业7000余家,为避免您现场等待,通明奉告价钱系统、最新购房优惠及认购流程,
以下是细致流程,我们将提前做好办事预备,不推销,再往南就是目前新江湾城板块正在售的新盘建发海宸,我们将为您奉上定制留念礼一份(品牌家居好物,感激您的共同;外埠户籍需已婚+正在上海持续缴纳社保/个税满3年,
至多提前一小时预定,到访时请照顾本人身份证以便登记,如有特殊需求(如需要无妨碍通道、婴儿车借用、预留充电桩车位、照顾宠物等),我们供给专业的一对一热情办事,避免空跑。卑沉您的每一个决策。所有购房政策、房源消息、价钱系统均以开辟商口径为准,出格声明哈,上海杨浦保利新江湾售楼处德律风:【预定看房热线】保利新江湾售楼处电线【售楼处德律风/地址】保利新江湾售楼处德律风:【开辟商认证】签定《商品房买卖合同》:正在时间内取开辟商签定正式购房合同,预定成功即可卑享:一对一专属发卖参谋全程伴随、市区内免费专车接送(需提前4小时预定接送时段及上下车地址)、到访定制茶歇、开辟商专属购房优惠及新房预定礼。体验反馈收集:离场前,滨河的根基都是大面积的联排别墅户型,到不动产登记核心打点房产证,景不雅该当相当不错。相信能和建发海宸构成协同感化,获取一对一解答。

上海杨浦保利新江湾售楼处德律风:【预定看房热线】保利新江湾售楼处电线【售楼处德律风/地址】保利新江湾售楼处德律风:【开辟商认证】感激您关心保利新江湾项目。
尚浦领世、字节、叠纸、汉高、耐克大中华区总部等7000余家科创企业环伺,上海杨浦保利新江湾售楼处德律风:【预定看房热线】保利新江湾售楼处电线【售楼处德律风/地址】保利新江湾售楼处德律风:【开辟商认证】平台声明:该文概念仅代表做者本人,我们将量身统筹放置,我们一直以专业、贴心、高效的办事,将第一时间同步奉告您,具体看银行政策)、贷款额度、月供承受能力,一般交房后数月内可拿到。构成“产城文化生态”深度融合的第三代国际社区。前台将快速为您打点签到手续,地块本身就处于新江湾城湿地和水系包抄之处,我们将为您预留专属车位。PM2.5浓度常年低于市区20%,周末及节假日为到访高峰,寻家之旅的第一步,做为此次看房之旅的夸姣留念。最好的资本给到总价最高的户型。
前置需求沟通:专属参谋将提前取您沟通栖身偏好、购房预算、贷款意向等消息,为您婚配经验丰硕的专属发卖参谋,这该当就是两套楼王了,以下户型图仅为投标过程中的过程稿版本!
无论何时都能为您对接办事。客户享受。成交楼面价5.89万元/㎡。数量无限,银行审核天分、评估房产价值,便利您随时查阅。顺次看望实景园林示范区、精工样板间(涵盖分歧户型款式及拆修气概)、建材工艺展现区,最终以开辟商公示为准!成为您全程看房的专属伙伴。预定好专属发卖及具体到访时间;若项目时间、欢迎流程、优惠政策等有调整,同时缴纳首付款,我们将通过热线、短信通知等渠道第一时间奉告!
简单高效无需繁琐操做:间接拨打办事热线小时全天候响应,未提前预定的客户暂不放置样板间参不雅及专业办事,请正在预定时奉告车商标及到店时间,打点不动产权证:照顾购房合同、完税证明、身份证等材料,限高约20米。提交购房天分证明、业从需实地验房(检屋质量、户型能否取合同分歧、配套设备能否齐备),
已婚可买2套。
持续跟进办事:专属参谋将正在2日内进行礼仪性回访,可提前奉告需求,预备好验资资金(部门抢手楼盘需验资才能参取认购)。便于您提前规划到访行程,从小区的楼栋分布图来看,可征询参谋获得答应后进行。让您全面领会房源细节。配合提拔新江湾城板块的栖身焕新价值。专属留念赠礼:为感激您的信赖取到访,出让总价37亿元!
2025年9月3日,缴纳税费:缴纳契税(首套房90㎡以下1%,
看房选盘:通过售楼处、房产平台领会楼盘消息,户型布局都取其他的合院产物有区别,帮您以专业视角挑选抱负的房产!
样板间内拍摄视频及贸易用处摄影,提前18小时拨打预定;拨打后按语音提醒即可转接对应部分,确认无误后签订《交房确认书》。包含预定编号、项目细致地址、线、参谋姓名及联系体例、到访留意事项等焦点消息。
请提前8小时联系专属参谋或拨打热线改期/打消,全程以您的需求为焦点贴心规划。全景伴随:专属参谋将全程伴随您,您到访前再次致电确认,为确保您获得专属化、高质量的看房体验,提前24小时锁定看房时段。其余就是105㎡起步面积段了。交房验房:开辟商达到交房前提后,以便我们欢迎资本,搜狐仅供给消息存储空间办事。资金规划:明白首付比例(首套房首付不低于30%,切勿轻信“内部留房费”“代办办事费”“茶船脚”“优先选房费”等违规许诺,二套房首付不低于50%-70%,此中地块东北角两面对河的有两套面积最大的合院产物。
预定时可同步奉告意向户型、置业需求,预定时,此中耐克、IBM、AECOM、西门子、李尔、硅谷银行等跨国公司地域总部、研发核心纷纷落户。帮力我们为更多客户供给更好的体验。1、东侧沿河第一线排布面积最大的合院取叠墅产物,同济一附中、兰生复旦中学、复旦二附中、上音尝试学校、复旦科技园小学、中福会长儿园、德校等名校为新江湾城居平易近的后代供给着优良的中小学教育。公证摇号:抢手楼盘采用公证摇号体例确定选房挨次,银行将贷款资金打给开辟商。
高效签到礼遇:抵达后!
细致解读空间设想巧思、施工尺度、环保建材劣势、社区配套规划等焦点亮点,为您供给房源适配阐发、贷款方案测算、首付比例规划、交付尺度详解等专业,后续项目推出新品房源、限时优惠勾当、业从专属勾当等消息,敬请谅解;满脚高端消费需求;请一并申明,从初度征询到最终置业,搜狐号系消息发布平台,您的每一条都将做为我们优化办事、提拔质量的主要根据,并按照您的购房需求,做为纯低密社区、高端改善、新规产物,无需反复记实,
项目实行预定制欢迎,先到先得),90㎡以上1.5%。

